Beschreibung
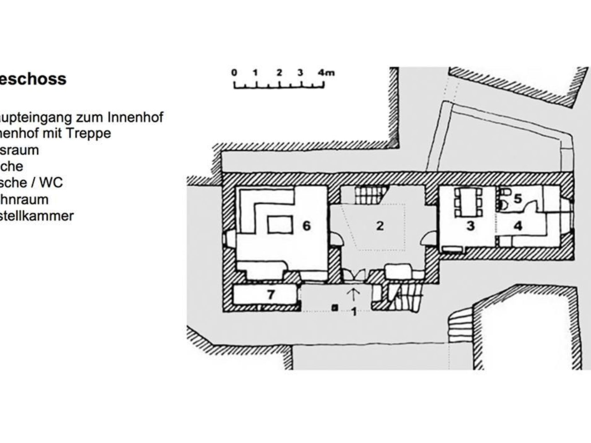
Unser Ferienhaus "Casa Anna" ist ein einfach aber gemütlich eingerichtetes "Rustico" in Avegno di Dentro, einer kleinen Siedlung traditioneller Steinhäuser im vorderen Bereich des Maggiatal, Kanton Tessin, Schweiz.Im Erdgeschoss befinden sich das Wohnzimmer mit Sitzgruppe und offenem Kamin, der Essbereich mit der modern eingerichteten kleinen Küche mit Kochherd, Backofen, Kühlschrank und Geschirrspülmaschine, und das Bad mit Duschekabine, Waschtisch, WC und Waschmaschine.Diese Räume gruppieren sich um einen kleinen Innenhof mit Gartentisch und offener Feuerstelle. Dieser Innenhof gibt dem Haus seinen ganz speziellen Charakter, alle Räume öffnen sich mit grossen Fenstertüren zu diesem Bereich, mitten im Haus können Sie sich unter freiem Himmel aufhalten und bewegen, ohne von den Nachbarn gestört zu werden.Eine offene Treppe führt vom Innenhof ins Obergeschoss mit den beiden Schlafräumen und der kleinen aber sehr sonnigen Reblaube über dem Eingang. Das Haus ist sehr ruhig gelegen und liegt in Gehdistanz zu den Badegelegenheiten an der Maggia. Wem aber die Ruhe zuviel wird, für den liegt der Lago Maggiore mit den bekannten Ferienorten Ascona und Locarno nur einen Katzensprung entfernt.Die Anfahrt ins Maggiatal (Vallemaggia) erfolgt über die Autobahn A2. Nach der Ausfahrt Bellinzona Süd folgen sie der Beschilderung „Locarno - Lago Maggiore“. Am Ende des Umfahrungstunnels von Locarno geht es weiter in Richtung „Vallemaggia - Centovalli“ und dann bei Ponte Brolla rechts ins Vallemaggia. Avegno ist die erste Ortschaft nach Ponte Brolla, fahren sie am Dorf vorbei, auf der rechten Seite sehen sie nun das Grotto „Mai Morire“, Sie biegen hier rechts ab und fahren auf der alten Dorfstrasse wieder zurück. Sie kommen nun zum Dorfteil „Avegno di Dentro“, hier in dieser kleinen Häusergruppe befindet sich unser Ferienhaus „Casa Anna“.Sie erhalten nach der Buchung einen ausführlichen Prospekt von unserem Ferienhaus, inkl. genauer Wegbeschreibung mit Skizze.
Sonstige Sport- und Freizeitmöglichkeiten: Das Maggiatal ist ein Wanderparadies!
Ausflugsmöglichkeiten: Es bieten sich viele interessante Ausflugsmöglichkeiten an.Sowohl das naturnahe Maggiatal mit den diversen Seitentälern, wie auch das Centovalli und das Verzascatal, aber auch Ascona und Locarno drängen sich dem interessierten Besucher für vielfältige Ausflüge und spannende Entdeckungsreisen auf. Aber auch der italienischen Teil des Lago Maggiore wird mit seiner mediterranen Stimmung, seinen Inseln, den malerischen Dörfern und Städtchen, ihre Ferien nicht nur kulinarisch bereichern.
Sonstige Wohnzimmerausstattung (Wohnzimmer1): Sitzgruppe mit Schwedenofen, TV
Sonstige Schlafzimmereinrichtung (Schlafzimmer1): Bettgrösse 180 x 200 cm
Sportmöglichkeiten in der Umgebung: Bergsteigen, Golfplatz, Klettern, Mountainbiking, Radtouren, Rafting, Ski (alpin), Tauchen, Segeln
Ortsbeschreibung: Das Ferienhaus "Casa Anna" befindet sich im Ortsteil "di Dentro" der Gemeinde Avegno im vorderen Bereich des Maggiatals und liegt nur gerade 7 km von den berühmten Ferienorten Ascona und Locarno entfernt.
Nebenkosten:
Strom : inklusive
Bettwäsche: mitzubringen
Handtücher: mitzubringen
Haustier: inklusive
Kaminholz: 0 EUR pro Nutzung ( von 01.01.2021 bis 01.01.2050, verpflichtend, müssen vor Ort bezahlt werden)
Endreinigung: 120 CHF einmalig pro Objekt ( von 01.01.2021 bis 01.01.2050, verpflichtend, müssen vor Ort bezahlt werden)
Sonstige Sport- und Freizeitmöglichkeiten: Das Maggiatal ist ein Wanderparadies!
Ausflugsmöglichkeiten: Es bieten sich viele interessante Ausflugsmöglichkeiten an.Sowohl das naturnahe Maggiatal mit den diversen Seitentälern, wie auch das Centovalli und das Verzascatal, aber auch Ascona und Locarno drängen sich dem interessierten Besucher für vielfältige Ausflüge und spannende Entdeckungsreisen auf. Aber auch der italienischen Teil des Lago Maggiore wird mit seiner mediterranen Stimmung, seinen Inseln, den malerischen Dörfern und Städtchen, ihre Ferien nicht nur kulinarisch bereichern.
Sonstige Wohnzimmerausstattung (Wohnzimmer1): Sitzgruppe mit Schwedenofen, TV
Sonstige Schlafzimmereinrichtung (Schlafzimmer1): Bettgrösse 180 x 200 cm
Sportmöglichkeiten in der Umgebung: Bergsteigen, Golfplatz, Klettern, Mountainbiking, Radtouren, Rafting, Ski (alpin), Tauchen, Segeln
Ortsbeschreibung: Das Ferienhaus "Casa Anna" befindet sich im Ortsteil "di Dentro" der Gemeinde Avegno im vorderen Bereich des Maggiatals und liegt nur gerade 7 km von den berühmten Ferienorten Ascona und Locarno entfernt.
Basisinformationen:
- - Haustiere erlaubt: 1
- erlaubte Hundegröße: mittel (30 bis 60 cm)
- - Tageslicht
Kochen/Wohnen:
- - Kaffeemaschine: Espressokanne
- Kühl-/Gefrierschrank: Gefrierfach, Kühlschrank
- Herd: Herd
- Anzahl Wohnzimmer: 1
- Kamin
- Ofen
Entertainment:
- - Fernseher: TV, Sat.-TV
Hauswirtschaft:
- - Waschmaschine: zur gemeinschaftlichen Nutzung im Gebäude
Außenbereich:
- - Outdoormöbel
- Grill: Grill
Umgebung:
- - Aussicht: Berg, Garten, Wald, Wiese
Besonderheiten:
- - Inmitten der Natur gelegen
Nebenkosten:
Strom : inklusive
Bettwäsche: mitzubringen
Handtücher: mitzubringen
Haustier: inklusive
Kaminholz: 0 EUR pro Nutzung ( von 01.01.2021 bis 01.01.2050, verpflichtend, müssen vor Ort bezahlt werden)
Endreinigung: 120 CHF einmalig pro Objekt ( von 01.01.2021 bis 01.01.2050, verpflichtend, müssen vor Ort bezahlt werden)
Ausstattung
Geschirrspüler
Kabel TV/Sat TV
Rustico
Waschmaschine
apartment
- 2 Schlafzimmer
- 60 m² Wohnfläche
- Max. 4 Erwachsene
- Min. 1 Erwachsene
- Typ: Apartment
Lage
La Cara dal Ortaiöö 21, 6670 Avegno
Die Inhalte dieser Seite wurden uns von e-domizil zur Verfügung gestellt. Bei Hinweisen oder Fehlern wenden Sie sich bitte an diesen Anbieter.
Mit den Pfeiltasten navigieren, ESC zum Schliessen.