Beschreibung
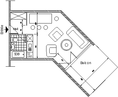
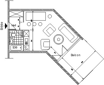
Studio (Typ E) für 4 Personen, im 1. Stock des Gebäudes Sallier in Thyon 2000. Sie verfügt über eine offene Küche: 4 Glaskeramikplatten, Backofen, Geschirrspüler, Kühlschrank (mit kleinem Gefrierteil). Das Wohnzimmer, mit TV und WIFI, besteht aus einer Sitzecke mit Sessel, ausziehbarem Schlafsofa (2.00 X 0.80), Etagenbett (1.90 X 0.80) und einer Essecke. Badezimmer: WC, Waschbecken und Badewanne. Balkon auf der Nordostseite mit Blick auf das Rhonetal. Wohnung OHNE Teppichboden. Haustiere sind nicht erlaubt.
Parkplatz in tiefgarage nach Verfügbarkeit und gegen Gebühr.
Hinsichtlich Thyon 2000
Der Ferienort von Thyon 2000 liegt auf 2100ü.M., direkt im Skigebiet der 4 Vallées und stellt Ihnen eine Qualitätsinfrastruktur wie z.B. Hallenbad, Sauna, Kinderhütedienst, Arzt, Geschäfte, usw., zur Verfügung ohne das Auto zu benutzen. Im Winter können Sie unter anderem von einem Skigebiet mit mehr als 400km Skipisten profitieren, aber auch von Schneeschuh Wanderungen, Langlaufloipen und verschiedenen Animationen. Im Sommer lassen Sie sich von tollen Spaziergängen, Mountainbike Touren, Besichtigung vom Stausee Grande Dixence oder einen Ausflug zur Ranch bezaubern. Das Ganze natürlich mit maximaler Sonneneinstrahlung und wunderschönem Panorama. Wir freuen uns, Sie in Thyon 2000 zu begrüßen!
Ausstattung

- 36 m² Wohnfläche
- Max. 4 Erwachsene
- Max. 3 Kinder
- Typ: Apartment