Beschreibung
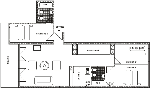
4-Zimmer-Wohnung (Typ N) für 6 Personen im 4. Stock des Gebäudes Zinal (Eingang B) in Thyon 2000. Sie verfügt über eine geschlossene Küche: 3 Kochplatten, Backofen, Geschirrspüler, Kühlschrank und Gefrierer. Das Wohnzimmer, mit TV und DVD, besteht aus einem Sitzbereich (1 Sessel und 2 Sofas) und einer Essecke. Schlafzimmer mit einem Doppelbett (2 Matratzen, 2.00 X 0.80), Schlafzimmer 2 mit einem Doppelbett (2 Matratzen, 2.00 X 0.90) und Kinderzimmer mit 2 Einzelbetten (1.90 X 0.90). 2 Badezimmern mit WC, Waschbecken und Badewanne, einer ist mit Waschmaschine. Balkon in Richtung Osten mit Aussicht auf das Val d'Hérens. Wohnung OHNE Teppichboden.
Parkplatz in Tiefgarage nach Verfügbarkeit und gegen Gebühr. Haustiere nicht erlaubt.
Hinsichtlich Thyon 2000
Der Ferienort von Thyon 2000 liegt auf 2100ü.M., direkt im Skigebiet der 4 Vallées und stellt Ihnen eine Qualitätsinfrastruktur wie z.B. Hallenbad, Sauna, Kinderhütedienst, Arzt, Geschäfte, usw., zur Verfügung ohne das Auto zu benutzen. Im Winter können Sie unter anderem von einem Skigebiet mit mehr als 400km Skipisten profitieren, aber auch von Schneeschuh Wanderungen, Langlaufloipen und verschiedenen Animationen. Im Sommer lassen Sie sich von tollen Spaziergängen, Mountainbike Touren, Besichtigung vom Stausee Grande Dixence oder einen Ausflug zur Ranch bezaubern. Das Ganze natürlich mit maximaler Sonneneinstrahlung und wunderschönem Panorama. Wir freuen uns, Sie in Thyon 2000 zu begrüßen!
Ausstattung

- 3 Schlafzimmer
- 99 m² Wohnfläche
- Max. 6 Erwachsene
- Max. 5 Kinder
- Typ: Apartment